Description
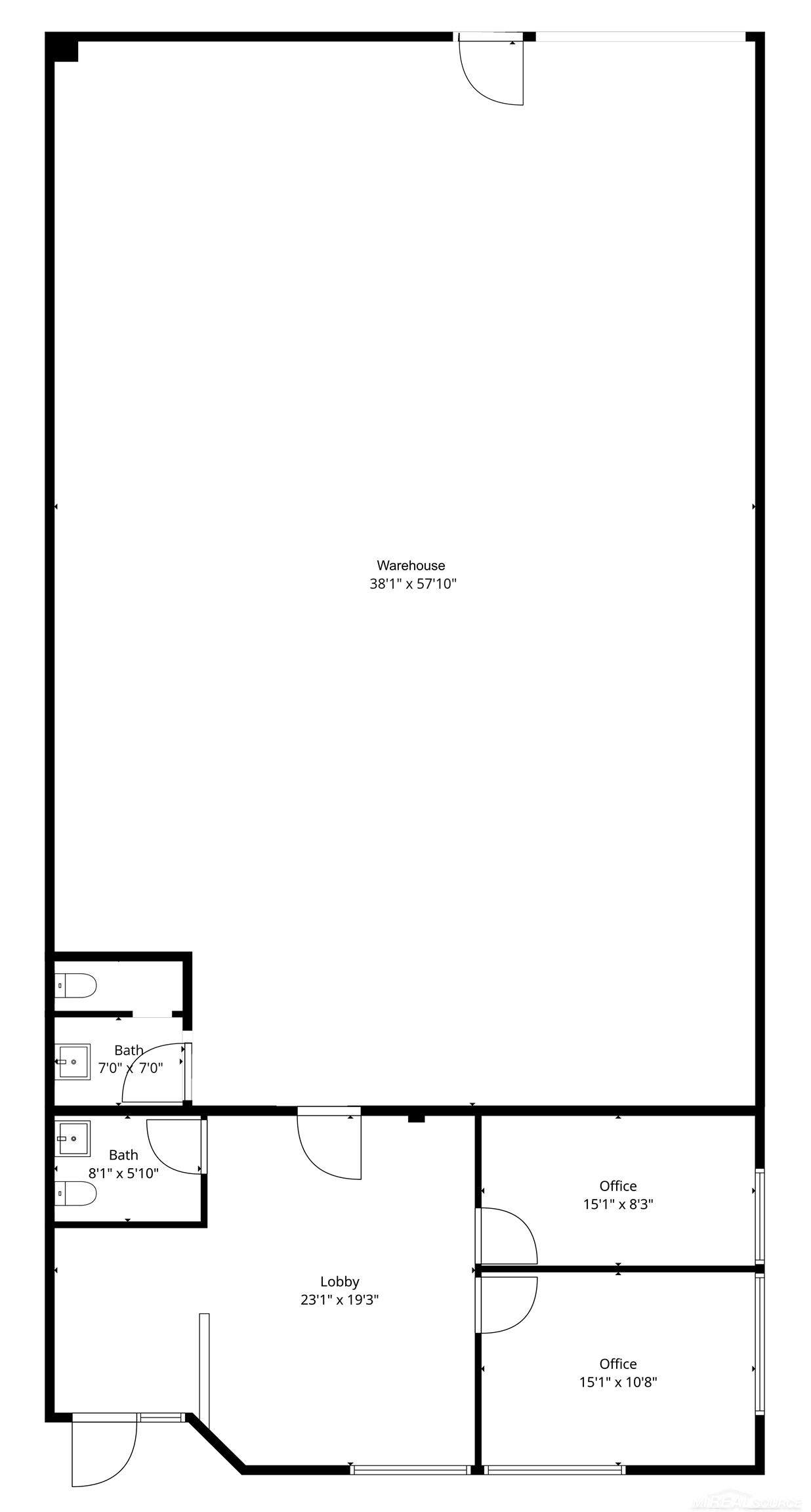
Approximately 3,200 SF end-unit industrial building in Livonia, MI, zoned General Manufacturing, with excellent access to I-96 and I-275. The property includes approximately 800 SF of office space featuring two private offices, including a corner office with abundant natural light, an open lobby, and restrooms. The warehouse area offers approximately 2,400 SF with 14' clear ceiling height, a new 10' x 12' overhead door for convenient loading, and an industrial stainless-steel sink. Recent upgrades include new LED lighting throughout, new carpet in the office areas, and freshly painted interiors. Electrical service includes 3-phase, 200A, 120/208V. This property is well-suited for light industrial, manufacturing, or distribution users seeking functional, well-maintained space in a prime Livonia industrial corridor.
-
0BEDS
-
N/AACRES
-
0BATHS
-
01/2 BATHS
-
3,200SQFT
-
$1$/SQFT
School Ratings & Info
Description
Approximately 3,200 SF end-unit industrial building in Livonia, MI, zoned General Manufacturing, with excellent access to I-96 and I-275. The property includes approximately 800 SF of office space featuring two private offices, including a corner office with abundant natural light, an open lobby, and restrooms. The warehouse area offers approximately 2,400 SF with 14' clear ceiling height, a new 10' x 12' overhead door for convenient loading, and an industrial stainless-steel sink. Recent upgrades include new LED lighting throughout, new carpet in the office areas, and freshly painted interiors. Electrical service includes 3-phase, 200A, 120/208V. This property is well-suited for light industrial, manufacturing, or distribution users seeking functional, well-maintained space in a prime Livonia industrial corridor.
©2025 MiRealSource (Michigan Multiple Listing Service). All rights reserved. IDX information is provided exclusively for consumers' personal, non-commercial use and may not be used for any purpose other than to identify prospective properties consumers may be interested in purchasing. Information is deemed reliable but is not guaranteed accurate by the MLS or The BRAND Real Estate. The information provided hereby constitutes proprietary information of MiRealSource, Inc. and its shareholders, affiliates and licensees and may not be reproduced or transmitted in any form or by any means, electronic or mechanical, including photocopy, recording, scanning or any information storage and retrieval system, without written permission from MiRealSource, Inc.
Data last updated: 2025-12-04T15:53:29.387.