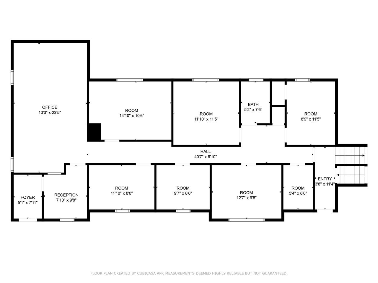
Description
Stand-alone office building with nine separate offices, plus a drop-in desk area for rent. Private offices range from $400-$600 per month, and drop-in space runs $200 per month. Rent includes all utilities, exterior and interior maintenance, and it even includes internet and a security system with cameras! There is one shared bathroom and a common waiting area. There is private parking adjacent to the property. The building is clean and well-maintained, and is located on the south end of Cadillac's business district. This is a great, affordable option for the private office space your business needs.
-
0BEDS
-
0.3ACRES
-
0BATHS
-
01/2 BATHS
-
2,300SQFT
-
$0$/SQFT
School Ratings & Info
Description
Stand-alone office building with nine separate offices, plus a drop-in desk area for rent. Private offices range from $400-$600 per month, and drop-in space runs $200 per month. Rent includes all utilities, exterior and interior maintenance, and it even includes internet and a security system with cameras! There is one shared bathroom and a common waiting area. There is private parking adjacent to the property. The building is clean and well-maintained, and is located on the south end of Cadillac's business district. This is a great, affordable option for the private office space your business needs.
©2025 MiRealSource (Michigan Multiple Listing Service). All rights reserved. IDX information is provided exclusively for consumers' personal, non-commercial use and may not be used for any purpose other than to identify prospective properties consumers may be interested in purchasing. Information is deemed reliable but is not guaranteed accurate by the MLS or The BRAND Real Estate. The information provided hereby constitutes proprietary information of MiRealSource, Inc. and its shareholders, affiliates and licensees and may not be reproduced or transmitted in any form or by any means, electronic or mechanical, including photocopy, recording, scanning or any information storage and retrieval system, without written permission from MiRealSource, Inc.
Data last updated: 2025-12-05T08:48:34.933.