Description
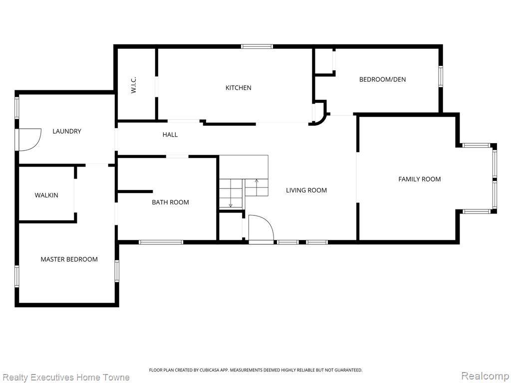
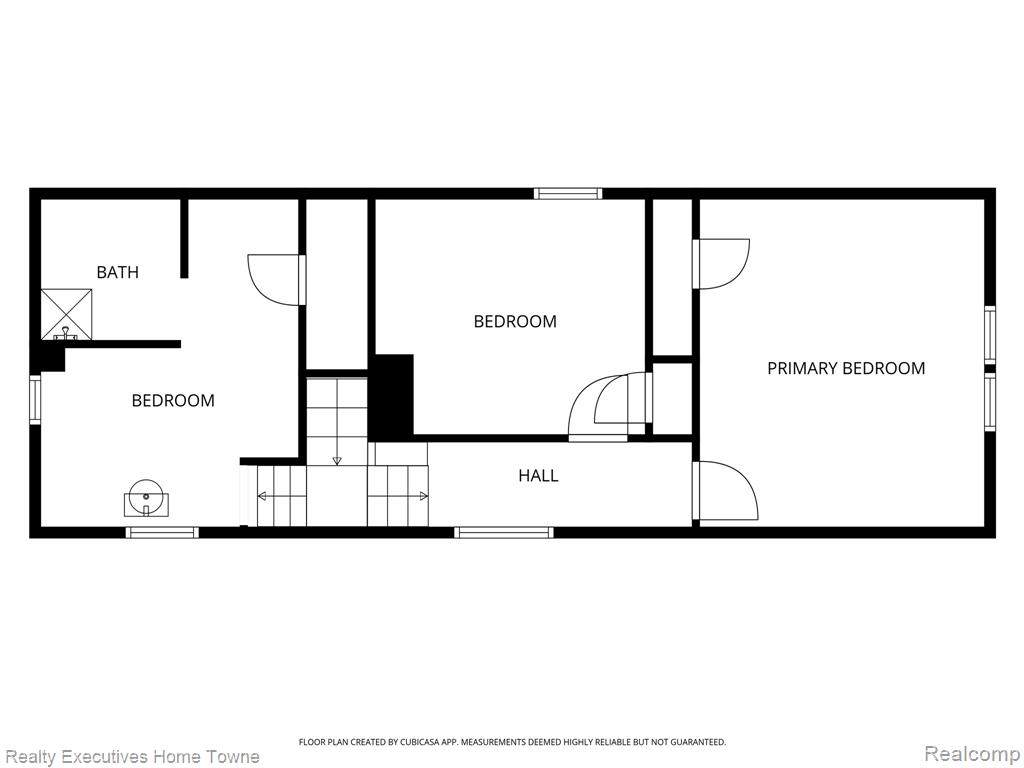
4–5 bedroom home currently undergoing a full renovation with major improvements already completed. New roof, new windows, exterior updates, and rough plumbing, electrical, and HVAC have all been installed. Drywall has been completed and the home is now at the finish stage, ready for trim, flooring, paint, fixtures, and final build-out. Excellent opportunity for an investor, builder, or owner-occupant to complete the project and add value. Possible 5-bedroom 2-bath.
-
5BEDS
-
0.16ACRES
-
2BATHS
-
01/2 BATHS
-
2,400SQFT
-
$56$/SQFT
Description
4–5 bedroom home currently undergoing a full renovation with major improvements already completed. New roof, new windows, exterior updates, and rough plumbing, electrical, and HVAC have all been installed. Drywall has been completed and the home is now at the finish stage, ready for trim, flooring, paint, fixtures, and final build-out. Excellent opportunity for an investor, builder, or owner-occupant to complete the project and add value. Possible 5-bedroom 2-bath.
Related Properties
©2026 MiRealSource (Michigan Multiple Listing Service). All rights reserved. IDX information is provided exclusively for consumers' personal, non-commercial use and may not be used for any purpose other than to identify prospective properties consumers may be interested in purchasing. Information is deemed reliable but is not guaranteed accurate by the MLS or The BRAND Real Estate. The information provided hereby constitutes proprietary information of MiRealSource, Inc. and its shareholders, affiliates and licensees and may not be reproduced or transmitted in any form or by any means, electronic or mechanical, including photocopy, recording, scanning or any information storage and retrieval system, without written permission from MiRealSource, Inc.
Data last updated: 2026-03-08T08:47:48.71.