Description
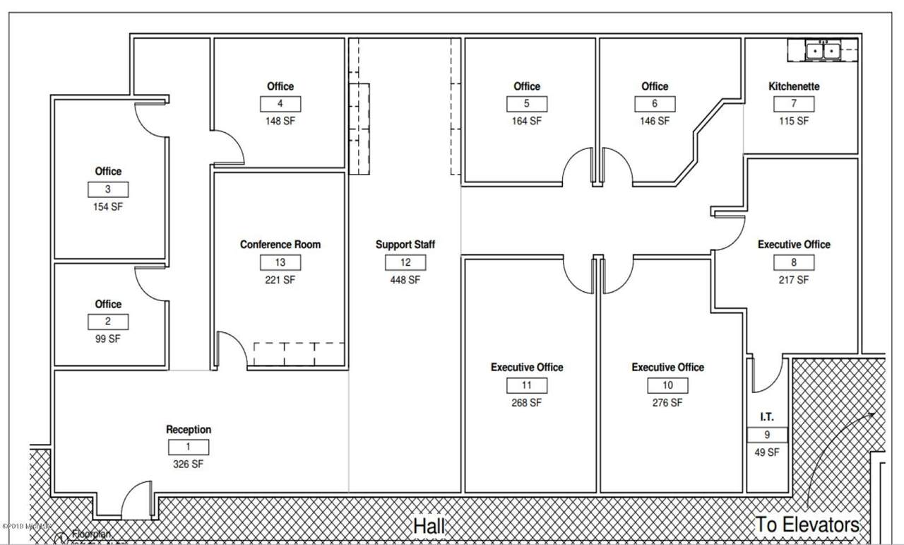
Rare commercial leasing opportunity! 233 Fulton Street is a fantastic location, right in the heart of Grand Rapids. This historic Masonic Center was built in 1915 and is a landmark in the community known for its beautiful architecture inside and out. All leases at 233 Fulton street include utilities except phone and internet. Ample free parking, Building Attendant service, freight elevator, Housekeeping services, and 2 main elevators in addition to a beautiful staircase. Conference room space available for occasional use (ask for details). Suite 210 is a 3200 sqft commercial suite that has 8 mini-suites sharing common rooms such as reception, kitchenette, etc. 210-G is 266 square feet! Monthly cost is based on a 1-year lease agreement.
-
0BEDS
-
1.61ACRES
-
0BATHS
-
01/2 BATHS
-
266SQFT
-
$2$/SQFT
School Ratings & Info
Description
Rare commercial leasing opportunity! 233 Fulton Street is a fantastic location, right in the heart of Grand Rapids. This historic Masonic Center was built in 1915 and is a landmark in the community known for its beautiful architecture inside and out. All leases at 233 Fulton street include utilities except phone and internet. Ample free parking, Building Attendant service, freight elevator, Housekeeping services, and 2 main elevators in addition to a beautiful staircase. Conference room space available for occasional use (ask for details). Suite 210 is a 3200 sqft commercial suite that has 8 mini-suites sharing common rooms such as reception, kitchenette, etc. 210-G is 266 square feet! Monthly cost is based on a 1-year lease agreement.
©2025 MiRealSource (Michigan Multiple Listing Service). All rights reserved. IDX information is provided exclusively for consumers' personal, non-commercial use and may not be used for any purpose other than to identify prospective properties consumers may be interested in purchasing. Information is deemed reliable but is not guaranteed accurate by the MLS or The BRAND Real Estate. The information provided hereby constitutes proprietary information of MiRealSource, Inc. and its shareholders, affiliates and licensees and may not be reproduced or transmitted in any form or by any means, electronic or mechanical, including photocopy, recording, scanning or any information storage and retrieval system, without written permission from MiRealSource, Inc.
Data last updated: 2025-12-05T08:48:34.933.