Description
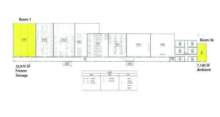
Large logistics company is offering a large freezer space (0 to minus 6 degrees) with shelving in place in their Pipestone building in Benton Harbor. Space has 4 dock doors, 2 with levelers. Also available is a 7,140 sf dry storage space with ambient heat. This suite has one dock door and one overhead door. Restrooms for both located in common area. No office space. Building sits between Pipestone Road and Sodus Parkway, offering easy access, close to I-94.
-
0BEDS
-
25ACRES
-
0BATHS
-
01/2 BATHS
-
229,486SQFT
-
$1$/SQFT
School Ratings & Info
Description
Large logistics company is offering a large freezer space (0 to minus 6 degrees) with shelving in place in their Pipestone building in Benton Harbor. Space has 4 dock doors, 2 with levelers. Also available is a 7,140 sf dry storage space with ambient heat. This suite has one dock door and one overhead door. Restrooms for both located in common area. No office space. Building sits between Pipestone Road and Sodus Parkway, offering easy access, close to I-94.
©2025 MiRealSource (Michigan Multiple Listing Service). All rights reserved. IDX information is provided exclusively for consumers' personal, non-commercial use and may not be used for any purpose other than to identify prospective properties consumers may be interested in purchasing. Information is deemed reliable but is not guaranteed accurate by the MLS or The BRAND Real Estate. The information provided hereby constitutes proprietary information of MiRealSource, Inc. and its shareholders, affiliates and licensees and may not be reproduced or transmitted in any form or by any means, electronic or mechanical, including photocopy, recording, scanning or any information storage and retrieval system, without written permission from MiRealSource, Inc.
Data last updated: 2025-12-06T21:49:29.